
发布日期:2026-02-16 来源: 网络 阅读量()
U8.COM·(中国区)有限公司官网-今年《政府工作报告》提出,适应人民群众高品质居住需要,完善标准规范,推动建设
的「好房子」。「好房子」首次被写入《政府工作报告》,被纳入2025年我国经济社会发展总体要求。
5月1日,「好房子”新国标《住宅项目规范》正式实施,层高不低于3米、4层以上强制装电梯、卧室分户墙隔声效果要求≥50分贝等规定,为「好房子」落地指明了具体方向。
2017年,十九大报告提出,「我国社会主要矛盾已经转化为人民日益增长的美好生活需要和不平衡不充分的发展之间的矛盾」。这一论断成为「从‘有没有’到‘好不好’」的政策逻辑起点,强调发展需从「量」转向「质」。
2023年4月28日,中央政治局会议首次明确提出「房地产市场的供求关系已发生重大变化」。同年年底,时任部长倪虹在2023年全国住房和城乡建设工作会议上指出:当前房地产的主要矛盾是「有没有」转向「好不好」,必须用新机制破解供求失衡。这就引出了「好房子」的概念。
说到底,「好房子」的底层逻辑是「能否满足人民群众的最新购房需求」,是因地制宜、与时俱进的。而「安全、舒适、绿色、智慧」8个字,最能概括经过疫情锁城、大房企暴雷之后人们对房子的需求变化。
安全,考验的是房地产开发企业的实力:一般来说,国企深度参与本地基建,镌刻着城市成长基因,是城市发展的「解码者」;而布局全国的大型房企经过反复打磨,创造力、产品力、服务力超群,是妥妥的「产品卷王」。前者托底城市基本面,后者拉高生活天花板,但往往少有兼得。
舒适,对应的是室外、室内两个维度的居住体验升级。老城区配套齐全、生活确定性满分,新城区拥有产业&人口红利、稳坐未来C位,而硬核的交通配套,可以重构距离,改写有关地段的游戏规则。因此,相对于地段,室外的舒适度与社区空间更加息息相关。室内居住体验则又重新挂钩了企业的「产品力」。
绿色,对应的也有2个维度:一个维度是生态层面的,要抬眼见绿;另一个维度是对建筑材料的要求,要环保、可持续。
智慧,多从人文细节出发,提供便捷、安全、高效的居住体验。由于个体之间的审美差异,毛坯交付依然是主流,很多业主也会在装修阶段定制适合的智能家居方案来完善自己的居住体验。
从代际住宅对比看,第一代住宅是茅草房,第二代住房是砖瓦房,第三代住宅是城市电梯房,而第四代就是「空中庭院房」、「城市森林花园建筑」
。相对于「好房子」而言,现阶段的第四代住宅更多还是各地方性、因地制宜的差异性指标。
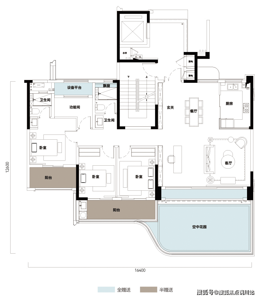
。第四代住宅得房率普遍超过100%。反观我们现在的普通电梯房的得房率,基本在75%左右。这意味着,以前我们买一套130平米左右的房子,使用空间不到100平米,而选择改良后的四代建筑,可以得到130平米甚至更高的使用空间。以即将面市的伍投·璞境建面约150平米的四代洋房户型为例,阳台+空中花园+设备平台+多飘窗+独享电梯前室的多赠送空间设计,合计拓展面积最高约能达到55平米(南北露台户型存有区别),实际空间可使用率高达约123%
。而在部分135-159平米的底跃户型中,实际可使用率甚至可以达到约281%。
在高得房率之外,四代住宅以超大露台为契机引发一场「户型变革」:让超大露台纵向深入到户型空间格局之中,露台与客厅、餐厅、厨房或卧室交融在一起,打破室内外空间的边界,实现稀缺的「室内外无界交融」。
「垂直森林」的设计,加强了人与阳光、绿地等自然元素的联系,让高层建筑也能实现传统意义的「有天有地」的别墅生活。同时,更多可使用的空间,也增添了新的生活场景,将「生活浓度」拉满。
还是以我们刚刚看过的伍投·璞境约150平米的户型为例,在户型格局上,LDKG的设计,不仅实现了7米开间的宽厅设计
,并且在南向大露台的加持下,实现了近90平米的公共活动区域。这意味着,客厅里可以同时摆下3米的大沙发、8人位餐桌和孩子的钢琴;也意味着,客厅可以成为生态剧场,食材的新鲜度是从露台到厨房;还意味着,在家就能烧烤轰趴……
而卧室的外接阳台可以是观景阳台、晾衣服的生活阳台,也可以是自律的健身之所,还可以和露台空间打通,一切根据主人的喜好来确定用途。
除此之外,整个户型破天荒地做到了「5开间」朝南,16.4米阳光霸屏,这种设计在宜昌十分罕见,将开创一种全新的生活方式。
不仅如此,垂直森林的设计更是直接改变了外立面的呈现形态。伍投·璞境在垂直森林景观体系之上,巧妙的将弧线融入露台边缘设计,塑造「游艇夹板」灵感立面,驾驶先锋四代住宅之舟在宜昌这个长江大保护立规之地破浪前行。
四代住宅由内而外的刷新了建筑的品质高度,但好房子还对社区规划有要求。如果说技术参数规定了四代住宅衡量底线,那么社区规划则将拉高四代住宅的产品高度,不同的房企开发的产品之间的差距也会因此拉开。
伍投·璞境作为其中佼佼者,给出了一个近乎完美的答案。项目A地块麓谷里定位于品质首发,容积率仅2.0,项目在此基础上打造了「一轴四园十一境」
的微度假式花园秘境,从「高定界面」的恢弘序章,到「画廊会客厅」的艺术碰撞,再到「色彩丛林」的童趣探险,美学浓度极高。
园林中有一个点睛之笔,项目利用整体地势与自然的高差,让营销中心衔接下沉式庭院和地库,打造了一个超级「灰空间」,从而使露天花园大剂量地涌入地下车库,超群绝伦。地库向花园打开,对地库的颜值就提出了更高的要求,这又反向促使项目打造时追加更多成本。
这种台地设计的另一个好处是,巧妙的利用地势高差,让项目内外形成自然的隔断,像「影壁」一样,保证小区住户下楼即享烟火气的同时隔绝了外部的窥视,增加美感的同时也提升了住户的居住私密性。
当然,四代住宅仍处于摸索阶段,也存在不足之处。比如同质化导致产品辨识度下降,工程难度升维导致的后期维护成本升高等问题。
我想这不是一个该由时间书写的答案,而是一个该由人书写的答案。由开发企业的造梦者尽其所有去满足人们关于美好的向往,由购房者去参观、去评判。
至于房产界Labubu的头衔,我觉得还远远不够。Labubu充其量只能是中产阶级的身份标签与精神点缀,而四代住宅还肩负着生活基座的远大理想。
在刚刚举办的「2025好房子点亮好生活“吾家好房”城市会客厅」论坛上,政府及湖北日报双方认证的好房子「伍投·璞境」震撼亮相。
项目超高得房率、生活场景极为丰富的户型设计,微度假+酒店式园林、台地式公区设计已令人叹为观止,伍投·璞境得到官方认证的原因显而易见。而且,伍投·璞境的魅力还远远不止于此。
项目由熟知本地的伍家城投和有「户型专家」之称的金地管理联合开发,既有国企的「稳」,也有全国大型房企与时俱进的「潮」,双管齐下更有保障。项目提供的不是那种模式化的金贵,而是更灵动的珍贵。它为富有创造力的高净值人群提供了建面约135-150㎡的花园洋房产品,同时也为追求品质生活的刚需刚改群体打造建面约104-128㎡的阔景小高层。它凭借「一城一图」科学工期管理制度来兑现真正的「因地制宜」、「与时俱进」。